top of page
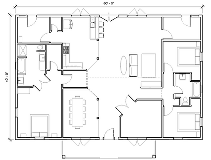
FLOOR PLANS
As a former designer with a background in architecture and engineering, I can help to plan a project from the ground up. whether it is planning a bathroom remodel or designing an entire house I can help your ideas come to life with floorplans, renderings, and interior designs.
Get a Quote
Put in your info and I will reach out to you and help create a free quote for whatever you need
bottom of page



